不銹鋼內浮盤
日期:2020-09-19 / 人氣:4458
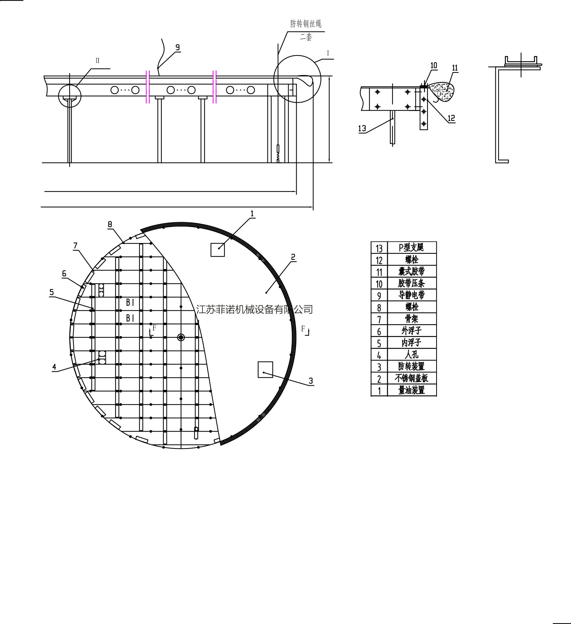
組裝式不銹鋼內浮盤采用了井字形結構。即浮盤的骨架成井字形;所用材料均為不銹鋼材質,增加浮盤的整體結構強度,相應延長了浮盤的使用壽命。
組裝式不銹鋼內浮盤技術采用了小截面浮子,確保每只浮子均可通過人孔,每只浮子采用不銹鋼板卷制成型,在浮子上面有一焊縫,浮盤運行時該焊縫處于液面以上,與介質不接觸,因而減少了泄漏的可能性。
外圈浮子集中分布,在外圈沿周邊密封帶附近,均勻設置了多個浮子,使密封帶受力均勻,減少了浮盤在運行過程中產生的密封帶與罐壁之間產生的摩擦力,同時也增加了密封帶附近的結構強度,保證了浮盤密封帶的運行安全,不會出現卡盤現象。
組裝式不銹鋼內浮盤安裝簡易、迅速、維修成本低;采用螺栓連接,無需焊接,特別適用于改造罐;零部件實現模具化,標準化生產,互換性好。
主要用料:
1、面板,厚度為0.5mm不銹鋼卷板;
2、骨架為不銹鋼板彎制成型;
3、支腿為不銹鋼管;
4、浮筒為不銹鋼板卷制;
5、密封膠帶根據儲存介質不同,選用相應形式的膠帶和材料,常用型式有舌型及囊式。
